• トップ・
    注文住宅
  • 土地・
    分譲住宅
  • リフォーム
  • スウェーデン
    ヒルズ
  • 提携法人
    はこちら
  • オーナー
    様へ
  • 企業情報・
    採用情報

NEW

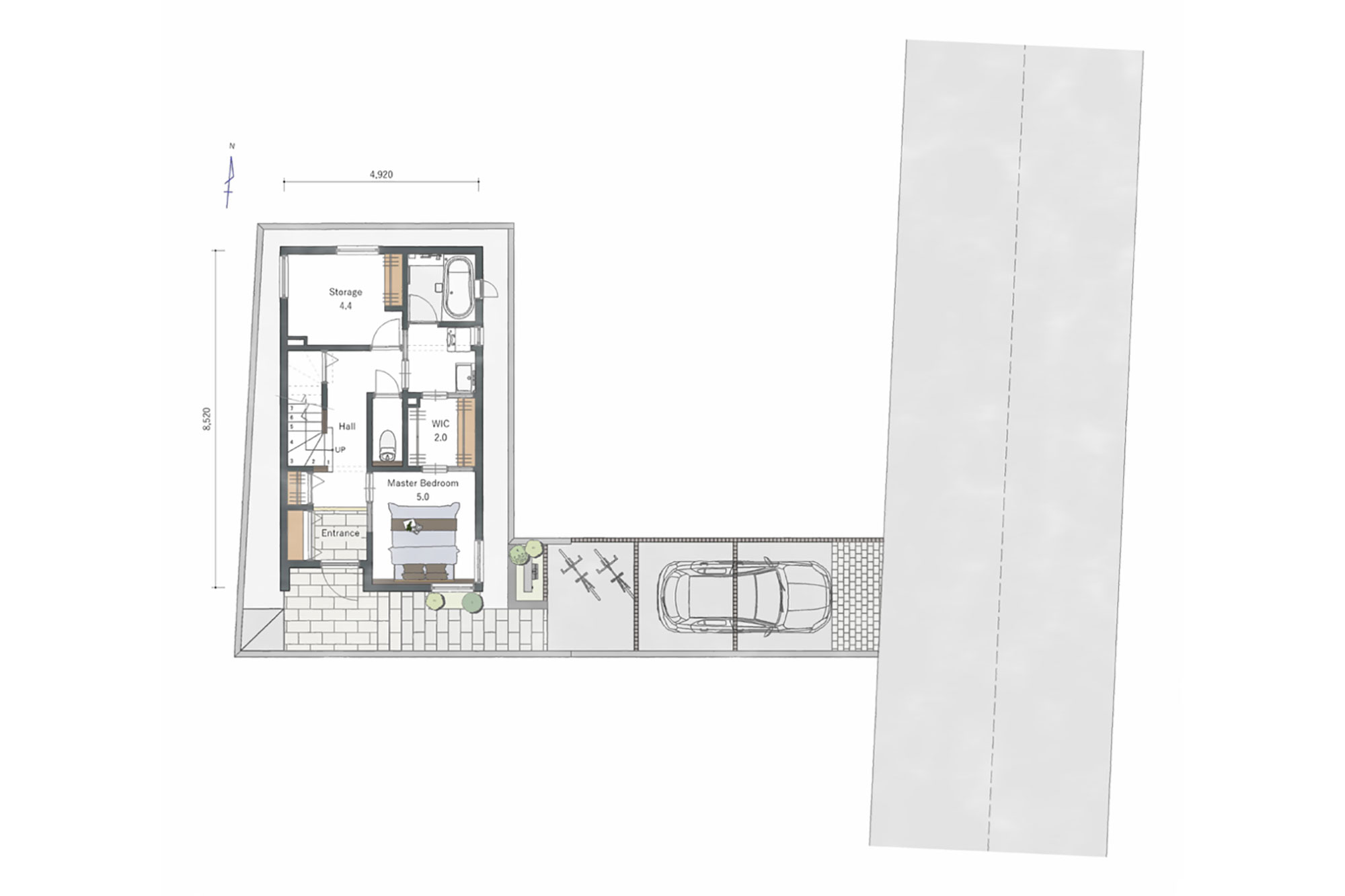
土呂町分譲住宅

物件所在地 埼玉県さいたま市北区土呂町二丁目76番8の一部
土地面積 / 建物面積 102.24㎡(30.92坪) / 82.56㎡(24.97坪)
販売価格 73,880,000円

見学希望・資料請求はこちら

全棟高性能保証表示システム CQ24+U

アクセス

  • 教育施設

    さいたま市立大砂土小学校まで徒歩16分(1.1km)、さいたま市立土呂中学校まで徒歩8分(600m)

  • 商業施設

    東武ストアとろマインまで徒歩10分(700m)、セブンイレブン土呂2丁目店まで徒歩7分(500m)、クリエイトSDとろマイン店まで徒歩10分(700m)

物件概要

 

 

物件所在地 埼玉県さいたま市北区土呂町二丁目76番8の一部
土地面積(㎡) 102.24m2(30.92坪)
建物面積(㎡) 82.56m2(24.97坪)
私道負担面積 なし
価格 73,880,000円
販売戸数 1戸
交通 JR宇都宮線(東北本線)、湘南新宿ライン、上野東京ライン「土呂」駅まで徒歩8分
敷地権利 所有権
その他金額  
間取り 2LDK+納戸+ウォークインクローゼット
構造/階建 木造2階建て(木質パネル構造)
地目 宅地
都市計画区域 市街化区域
用途地域 第一種低層住居専用地域
建ぺい率/容積率 50% / 100%
道路 公道/東側幅員6m
設備 冷暖房:エアコン3台、給湯:エコキュート、キッチン:IH、その他:食洗器、24時間換気システム、TVドアホン、外構、カーテン、照明
駐車場
築年月 2026年3月末予定
引渡日 要相談
法令制限  
その他  
売主 株式会社スウェーデンハウス
国土交通大臣許可(特-4)第13225号 / 国土交通大臣免許(8)第4255号
(公社)東京都宅地建物取引業協会会員 /(公社)全国宅地建物取引業保証協会会員 /(公社)首都圏不動産公正取引協議会加盟

株式会社スウェーデンハウス
本社:〒154-0004 東京都世田谷区太子堂4-1-1 キャロットタワー23階
TEL:03-5430-7620
特記事項  
建築確認番号 第25UDI1S建03006号
取引態様 売主 株式会社スウェーデンハウス
取引条件の有効期限 2025年12月22日
物件登録日または更新日 2025年10月28日
次回更新予定日 2025年12月22日
取り扱い支社・支店 北関東支店
問い合わせ先 宅建業/国土交通大臣免許(8)第4255号
建設業/国土交通大臣(特‐4)第13225号
株式会社スウェーデンハウス 北関東支店
埼玉県さいたま市大宮区宮町1-114-1 ORE大宮ビル4F

電話:048-645-5809 担当者:五十嵐

見学希望・資料請求はこちら